al centro di Milano.
Una visione
che prende forma
Un edificio cielo-terra riservato, luminoso e trasformabile, perfetto per accogliere una sede aziendale distintiva, flessibile, contemporanea. Marcona 37 è un’opportunità unica per immaginare spazi di lavoro e rappresentanza in un contesto centrale ma protetto, da modellare secondo la propria visione.
Indipendenza Totale
Edificio cielo-terra con accesso esclusivo
Spazi Generosi
Oltre 1.000 mq tra interni e terrazze
Volumi Versatili
Doppia altezza sul retro del piano terra
Flessibilità Funzionale
Ideale per sede aziendale con aree espositive
Libertà progettuale
valore architettonico
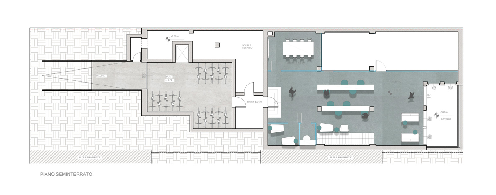
Disposto su quattro livelli e dotato di un’ampia terrazza e cortile privato, l’edificio offre una base concreta per interventi di riqualificazione su misura. Una porzione a doppia altezza sul retro del piano terra apre a soluzioni funzionali e scenografiche, ideali anche per funzioni di rappresentanza o showroom.
Luminosità naturale
massima flessibilità
Ogni livello può essere interpretato liberamente per rispondere a esigenze operative, direzionali o di rappresentanza. Gli ambienti, ben distribuiti e regolari, si prestano a layout efficienti, con l’aggiunta di terrazze e cortile a uso esclusivo per elevare la qualità complessiva del lavoro quotidiano.
mq superficie complessiva
mq spazi interni
mq terrazze e cortile
livelli indipendenti
Una posizione strategica
nel tessuto attivo della città
Situato in un contesto urbano riservato ma ben connesso, Marcona 37 garantisce visibilità, accessibilità e prestigio. Una scelta ideale per aziende che cercano spazi rappresentativi senza rinunciare alla funzionalità e alla centralità
Metropolitana + _
M4 Dateo
Tram e bus + _
Tram 19, 27, 33 - Via Arconati
Tram 9, 12 - V.le Premuda
Bus 92 - V.le Piceno
Bus 27, 973 - P.za Emilia
Bus 12, 27, 60, 973 - P.za S. Maria Del Suffragio
Bus 60, 61, 62, 66, 84 - Via Bronzetti Via Archimede
Bus 60, 61, 62, 66, 84 - Via Cadore C.so Ventidue Marzo
Bus 61, 81, 90, 92, 93 - L.go Marinai D'Italia V.le Umbria
Stazioni Ferroviarie + _
Milano Dateo
Milano Porta Vittoria
Servizi + _
Palestre, supermercati e ristoranti in zona
Contattaci per maggiori informazioni
Ogni visione ha bisogno dello spazio giusto.
